Converge Nexus -

Leutschenbach School Adaptation

Semester : Summer 2024

Instructor : Adam Frampton

Collaborators : Hongyi Cui, Yawen Qiao

Location : Avenue X, New York 11223

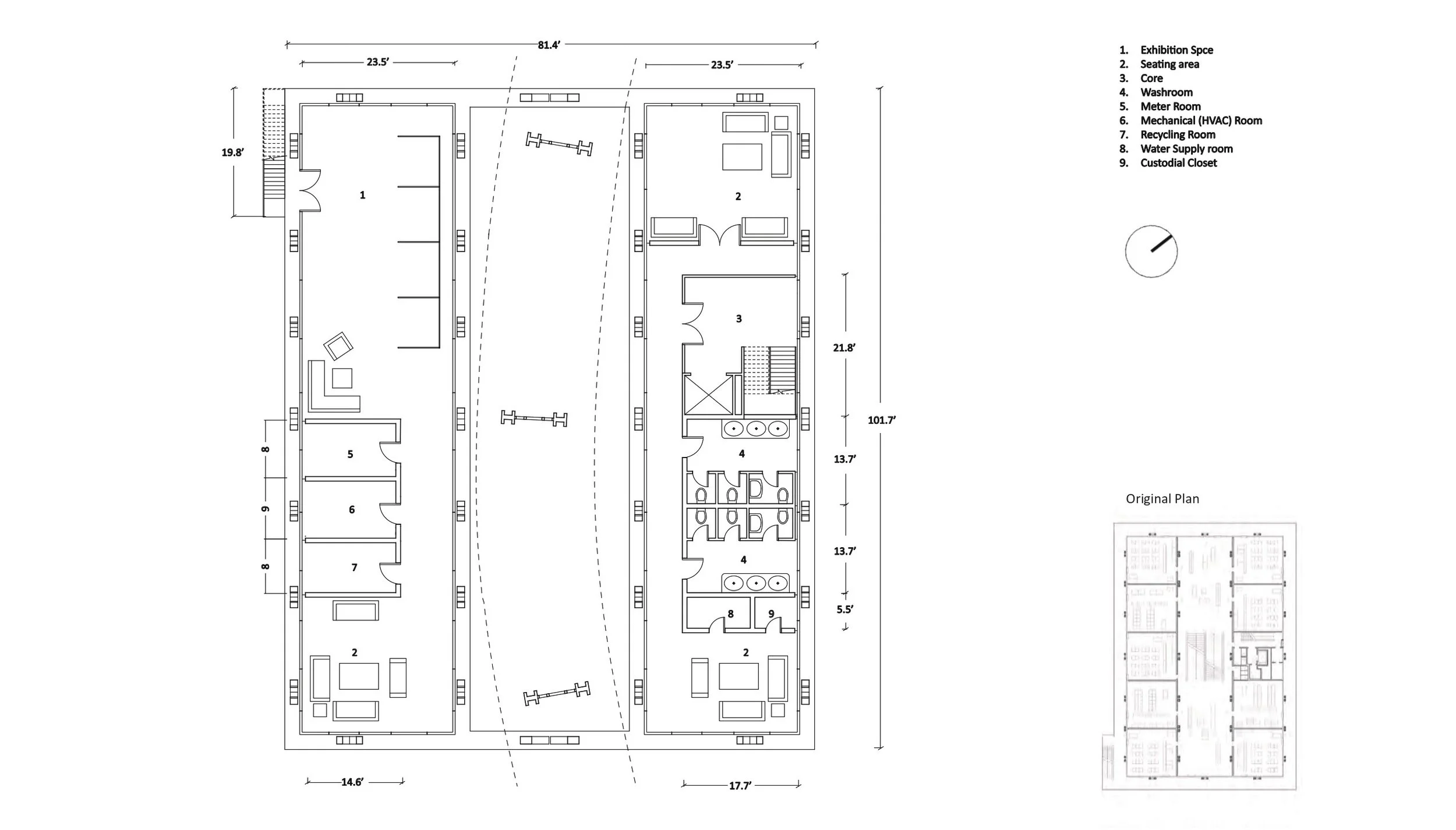
Nestled near Coney Island, this project reinterprets the structural ingenuity of the Leutschenbach School, integrating its signature trusses and tripods into a dynamic, multifunctional space. Designed to accommodate a railway line running through its core, the building seamlessly combines office spaces, an interior garden, and an open market, fostering a vibrant urban ecosystem. A strategic mid-level shift aligns the structure with the surrounding road network, enhancing accessibility and urban flow. This adaptation not only pays homage to Leutschenbach’s architectural legacy but also enriches the fabric of Coney Island, merging education, architecture, and nature into a bold, contemporary landmark.

The Leutschenbach School, designed by Christian Kerez, was thoroughly studied and documented to gain a comprehensive understanding of its structural system, material palette, and construction technologies. This in-depth analysis provided valuable insight into the architectural strategies employed, particularly the innovative use of exposed steel framing and floor slab systems, which informed subsequent design decisions.

Leutchenbach School - Site Plan (Switzerland)

Leutchenbach School - Ground Floor Plan

Leutchenbach School - Ground Floor Plan

Leutchenbach School - Elevation

Leutchenbach School - First Floor Plan

Leutchenbach School - Section

Leutchenbach School - Perspective Section

First Floor Plan

Second Floor Plan

Third Floor Plan

Fifth Floor Plan

Fourth Floor Plan

Details